DIJUAL RUMAH PRIMARY NAURA TOWN HOUSE CIGANITRI-BANDUNG
Dijual rumah primary di perumahan Naura Town House, Ciganitri, Bandung. Perumahan strategis dekat dengan Telkom University, Akses Tol Buahbatu, kawasan komersial bandung, dan fasilitas publik lainnya.
PROJEK PRIMARYBANDUNG
DIJUAL RUMAH NAURA TOWN HOUSE CIGANITRI - BANDUNG








10 Menit ke Telkom University
10 Menit ke gerbang tol Buahbatu
10 Menit ke Transmart Buahbatu
10 Menit ke Podomoro Park
10 Menit ke Margacinta Park
Dijual sebuah rumah perumahan Naura Town House, Ciganitri, Bandung. Perumahan yang terletak di pusat kota dan sangat strategis karenda dekat dengan banyak fasilitas publik, pendidikan, dan komersial Bandung. Sangat cocok untuk hunian kaum millenial yang mendambakan rumah primary dengan konsep minimalis modern.


Rp 670.000.000
Dapatkan rumah ini dengan harga terbaik di rumahhunian.com. Silakan kontak tim rumahhunian.com untuk berkonsultasi dan survey lokasi,
DETAILS
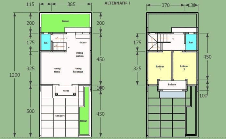
Kamar Tidur: 2
Kamar Mandi: 2
Luas: LT: 50 sqm, LB: 60 sqm
Lantai: 2
Listrik: 1300W
Sertifikat: SHM
Fasilitas Lainnya:
Ruang Keluarga, Ruang Tamu, Car port, Taman Depan dan Belakang, Air Submersible, Dapur




PROSES
TRANSAKSI
SURVEY
Tim kami akan membantu anda untuk survey lokasi sehingga anda dapat menentukan kecocokan dan kritteria properti seperti yang anda inginkan. Dan kami akan jelaskan secara detail properti yang anda survey untuk mendapatkan informasi mengenai properti tersebut. Konsultasi juga kami berikan secara cuma-cuma.
1
2
NEGOSIASI
Jika anda sudah merasa cocok anda bisa bernegosiasi dengan tim kami untuk harga, lokasi, lantai (bangunan bertingkat: apartemen, aparkos,dll), dan cara bayar yang anda kehendaki.
3
CLOSE DEAL
Jika semua persyaratan dan kondisi sudah disepakati, dan transaksi sudah dilakukan maka serah terima akan dilakukan. Konsultasi gratis akan tetap kami lakukan sebagai bagian dari Value Addes Service kami.
SIMULASI KPR
KONTAK KAMI
Jika anda tertarik untuk membeli sebuah properti jangan ragu untuk menghubungi kami via Whatsapp atau anda bisa mengisi form berikut dan kami akan menghubungi anda dalam waktu singkat.
